Neues Leben für einen Gasthof
Geschichten von Morgen
Die Türen des historischen und zentralen Treffpunkts heißen sowohl junge als auch ältere Menschen in dem HEIMATRAUM willkommen.
Der ehemalige Gasthof erstrahlt in neuem Licht, ohne seinen alten Charme zu verlieren.
Gleichzeitig ist es ein Ankerpunkt für kulturelle Vielfalt, die durch ein hohes Angebot an Kultur und Bildung entsteht und im Wilhalm „HEIMATRAUM“ findet.
Durch die Begegnungen entsteht eine Stärkung des gesellschaftlichen Zusammenhalts.
Dieser Ort schreibt Geschichte.
Die Menschen, die sich an diesem Ort treffen, schreiben Geschichte.
Die Geschichte von Morgen…




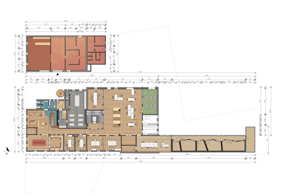
Erdgeschoss








Musikräume








Obergeschoss





